Saturday, December 28, 2013

Dachausmittlung -- Complex Geometric Roof Design

This example of Dachausmittlung, Geometric Roof Design, is rather complex geometrically and is extremely complex if we were using trigonometry. After I drew out the geometric roof design I checked the plan angles with my RafterTools apps and to my dismay my RafterTools apps were not able to calculate the plan angles for the eave angles when the eave lines are sloping.

3D View of the Roof Design

Wire Frame sketch of the Roof Design with raking/sloping eave lines.


Ground Plan of Roof Design.
Two different roof pitches with two eave lines raking/sloping.


In this drawing I've labeled the eave angles that my RafterTools apps could not calculate the plan angles for.


Drawing showing the geometric construction of the roof design with some of the construction lines removed for clarity. 

Steps for drawing the geometric roof design.







This is one of those roofs where the hip rafters can only be calculated from the geometric design of the roof. I'm not sure if there are any American CAD programs that could automatically draw out the roof design like the German CAD programs do. I'll have to look into writing a new Android/iPhone app that can be used to check the roof plan angles when the eave lines are sloping. 


Wednesday, December 25, 2013

Dachausmittlung -- Geomtric Roof Design

This example of the geometric roof design is from the book
Basiswissen Dachausmittlung by Peter Kubler & Albert Muller

Three different roof profile slope angles, 40° - 50° - 60°, and all of the eave angles are not at 90°.

Ground Plan 





Ground Plan  & Profile Slope Angles

to develop the dimensions for the different rafter runs, g1 - g2  -g3, based on the rise h.

Drawing with the parallel lines drawn using the dimensions g1 - g2  -g3. To develop the Sectional Area of the Intersection of the Roof Planes.



Hip Rafter Run Lines

 drawn from the intersection of the parallel lines.



Cripple Hip Rafter Run Lines

drawn in to locate the cripple hip rafters.

Cripple Hip Rafter Run Lines

drawn in to locate the cripple hip rafters.

Roof Design Complete.



Profile Rafter Slopes

drawn in to locate the height of the ridges & cripple hip rafters.


3D Views of the Roof Design.






Tuesday, December 24, 2013

Super Zimmerer 2012 Task Model

Aufgabe 1 Dachausmittlung from the Super Zimerer website
Task Model 1 Roof Design

Here's a link to the Super Zimmerer's website with other task models.

This task model is all about roof design. Your given a ground plan and you have to draw the unequal pitched hip roof out geometrically.


 The roof profile slope angles are 50° and 40° with eave angles on 2 of the corners of the ground plan that are not at 90°. In this next drawing I drew out the roof design without the ± 1.00 , that represents raised or lowered plate lines to make sure I understood the basic roof design of the ground plan. The g1 & g2 dimensions are developed from the profile of the roof slopes using the same rise dimension h. The rise dimension h can be any dimension, but it's best to made it about 1/3 of the total rise of the roof for clarity. When your drawing parallel lines from the eave line using the g1 & g2 dimensions you want to keep them away from the ridge lines for clarity. The intersections of the  g1 & g2 dimensions locate the hip rafter run lines.


It's best to separate the different areas of the roof  to draw out the cripple hip rafters  that are developed by extending the lines of the eave lines. 


Here's the completed drawing for the roof design without using the ± 1.00 , that represents raised or lowered plate lines.

Here's the completed drawing for the roof design using the ± 1.00 , that represents raised or lowered plate lines.

3D model of the roof design showing the raised and lowered plate lines.



Here's the roof design for the Aufgabe 1 Dachausmittlung from the Super Zimerer website for 2009.





Saturday, December 21, 2013

Super Zimmerer 2008 Task Model


This is a task model from the German Federal Education Center for Zimmermann's from the  2008 Super Zimmerer competition. This task model has unequal pitched roof slopes and eave angles that are not at 90°.
Here's a link to the Super Zimmerer's website with other task models.

A list of dimensions that the carpenter has to calculate/draw out geometrically in 45 minutes using a CAD program. No calculators are allowed. However, I did check my drawing using my RafterTools Apps for Android & iPhone.

Höhe Traufe HT = ................
Höhe First HD HFHD = ................
Höhe First AB HFA = ................
UK Firstpfette HD UKFPHD = ................
Max. Rücksprung HD ger. G1 = ................
Max. Rücksprung AB/W ger. G2 = ................
Drempelhöhe AB/W HDA = ................
Länge Firstpfette HD LFP = ................
Schifterbackenschmiege HD BS = ................
Grundverlegung Breite HD XH = ................

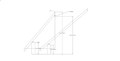
After drawing the ground plan (Grundriss) you have to draw the profile of the roof slopes,(40°,50°) to draw out the bisecting lines that determine the plan angles for each corner of the roof design.  Here, I used a 200.00mm rise to draw out the bisecting lines for the location of the hip rafter in plan view.




Next, I drew in the Hip Rafter Shift/Offset for the location of the edges of the hip rafters for roof plane alignment. They call it the Basic Shift.


Höhe Traufe HT = 59.86mm


Höhe First HD HFHD = 461.75mm
Höhe First AB HFA = 452.2589mm

UK Firstpfette HD UKFPHD = 406.6610mm


Max. Rücksprung HD ger. G1 = 9.6339mm
Max. Rücksprung AB/W ger. G2 = 6.1530mm
Drempelhöhe AB/W HDA = 123.2060mm





Länge Firstpfette HD LFP = 502.8071mm



Schifterbackenschmiege HD BS = 244.2788mm

Grundverlegung Breite HD XH = 11.4472mm


Sunday, December 15, 2013

Schiftungen translated to English


The applied descriptive geometry comprising : the basic concepts of geometry, geometric drawing, the projection doctrine or the projective drawing, the Dachau averages, helical, helical surfaces and curved components and the Schiftungen.
Edited for school use and construction practices ..
1902


Erich Geyger

http://books.google.de/books?id=FLqEAAAAIAAJ&hl=de&pg=PP1#v=onepage&q&f=false








Keywords
Schiftaufgaben des Zimmermanns
Schiftungen - Austragungen - Dachausmittelungen



Schiftungen - Sweeps - Dachau averages 
Unchanged reprint of the 2nd Edition of 1931, Lahr, pressure of Dietz Gebr 
Seeger, Robert, 
Karlsruhe (Germany, Federal Republic of) 
brother Verlag 
2002, 75 pp. 
ISBN: 978-3-87104-127-3 

Robert Seeger came in the twenties and thirties of the last century, a consistent implementation of the geometry in the practical Schiftaufgaben of the carpenter. His Schiftungen of 1931 take the modern Flächenschiften anticipated. This, and the for that time very complex and expensive design, may be the reason that the session was so popular. There are only a few originals and some self-made copies. The now re-released as an eBook edition represents a piece Zimmermann history dar. From the contents: The "General" section contains three sheets to the subjects angle structures and detailed explanations. In the chapter "Dachau averages" the author describes, inter alia, the Ausmittlung different roof surfaces with equal slopes and equal hipping, with the same inclinations and unequal eaves and ridge heights. The Ausmittlung curly and round towers and spire different solutions are also shown graphically. The panel part "explanation of the different Schiftungsarten" includes 13 panels with details on the topic.These range from the creation of the entablature above the discharge and scribing different profiles up to jibe on the hip and valley rafters. In the section "Schiftungen" be on 45 panels eg variations of hip and valley rafters, Gratklauen and Kehlklauenschifter, purlins and Walme canted shown. Bohlenschiftungen be shown on 11 plates.Turmschiftungen are discussed in detail on 14 leaves.



Schiften on uneven sloping hipped roof

Schiften am ungleich geneigten Walmdach

Ridgeline, valley line


Ridge, throat, Verfallgrat


Verstichmaß


Schifterschmiege


Witches section


To tearing


Brick guards


-----------------------------------


http://www.bbs-ammerland.de/index.php/lernfelder-im-3-lehrjahr-554.html






Chapter Six.
Schiftungen.


The consideration of the chapter .. Dachau averaging "given the numerous samples of composite roofs teaches us that the latter bezw are formed almost exclusively by the intersection of gable roofs. Can be broken down into those. The simple gable roof, including understand the roof form, in which only two inclined to each other, intersecting planes form the roof in a straight line, like a lying, three-sided prism, namely a right prism if the building floor plan rectangular, a truncated prism when it is designed is trapezoidal. forming the bases of the prisms vertical planes are the gable of the roof or the building. Become latter but replaced by planes which are inclined as the surfaces of the gable roof to the horizontal floor plan level, ie, with the latter form an acute angle, so that the roof appears as a gable-less and on all sides drops out, the hipped roof, and the triangular areas in which now the formerly limited by vertical planes prism is cut arises glad Walme when the horizontally disposed sides of the same with those of the saddle roof faces lie in a horizontal plane, Krüppelwalme if the mentioned pages in different horizontal planes.

The lines in which the Walmflächen cut the gable roof surfaces glad ridges, the point of intersection with the ridge of the roof is called seizure point. In the horizontal projection of the ridges bisect the angle of the building plan, if the roof pitch on all sides assumed to be equal, and therefore we obtain for roofs with the same roof pitch the projections of the ridges and at the same time the attack points by bisecting the angle of the floor plan. The location of the attack points is not without influence on the distribution of the binder of the gable roof. From the main containers of the same one is usually two on the same so that it faces with their the Walme, vertical sides are under this points found on this page, the hip rafters and indirectly also the other woods, which form the hipped, a prop. The hip rafters are such that the amount drawn on the upper bounding surface of Gratsparrens center line with the ridge line, of which we have the projection in Gruudriss, coincide, ie that, conversely, a to the basic crack plane in the projection of the ridge built vertical plane of the hip rafters lengthwise halved. Those parts of the roof surfaces for which the ridges form the upper boundary formed by the rafters, probably like the other rafters of the gable roof begin at the foot of the same (at the eaves) but not reach up to the ridge, but is au blunt the hip rafters Creating and are all of different lengths and hot as distinguished from the rafters of the gable roof Schiftsparren or Schifter. Similar considerations can also hire for such parts of roof areas, for forming the timber rafters which. From the ridge up to a so- Throat rich, (Kehlschifter), which is known to arise if the building floor plan has a re-entrant angle. Spatial valley line as well as the ridge line is the center line of the upper surface of a beam, which is called collar beam.

Those works of the carpenter, which erheischt the execution of roofs with ridges, valleys and Verfallungen, such as the determination of the true length and shape of the ridge, fillet and Schiftsparren, the discovery of the shape of the surfaces with which these woods support each other and be superimposed on the same, one labeled "jibe" or "Verschiften 1 'There are various methods that. "" execute Schiften "or" Verschiften, the most important are:


1) the Spaulders on the Lehrgespärre
2) the Spaulders of the work sets
3) the Spaulders on roof surfaces (Bohlenschiftung).


I. The Spaulders on the Lehrgespärre.


a) Gratsparrenschiftung. Under Gratsparrenschiftung refers to the determination of the true length of the Gratsparrens and Gratschifter so as to determine the true shape of the support and bearing surfaces of these woods. 1 The hipped is a straight and the roof surfaces have the same inclination.


The determination of the true lengths of the various woods of Walmes will not be executable, if you have made a horizontal projection of the roof in true size, in natural size and also a rafter pair of saddle roof with the associated supporting structure to a room due to the "working drawing.


Figure 416 represents a hipped there is nothing in the rafters on the left side (Fig. 416e) are cut vertically at the foot end and an inferior purlin supported (trailed), while on the right side of Figure 416 ^ = 416f one roof beams is assumed wherein the rafters set with slanting pin. For a better understanding of the given in Figure 416 is another view of the right-most part in the direction of the arrow (MN) in Figure 416, a front elevational view of the roof in Figure 416 b, and finally the cutting PQ in Figure 416 c drawn been. In the former case, the size of the roof projection is formed by the inferior purlins, at the same time, the rafter pair Figure 416 d, called teaching packs, gained horizontally. Below set boards are now the projections of the ridge lines a ', b' and A'B /, and the Gratsparrenkanten, namely e ° F, ° C d ', e ^! 0 ° c and d / and finally the two Sparrenfüsslinien b ° B 'and B, 0^ ', B'C', and B t 'q ' by means of line









for proposal to untie. The roof joists of the d and f given by Figure 416 roof means Werksatz or allowance.


Both the shape as the length of each timber can now be determined with the aid of these lines and the teaching container.


Length and thickness of the hip rafter. For determining the length of the hip rafter, the knowledge of the true size of the center line of the surface thereof is necessary, the projections are placed in two cracks (A'B 'and a "b", as A'B / A, and "^").





Lengths of their projections do not, if the vertical a "x" bezw so in Lehrgespärre. a "xt" determined and the work record lengths sampled a'b 'and a'b l'of the points x' and x l " removes from the right and left, so that x '(b') = a'b ' , x "s" = a'b / , then in the first case a "(b") the true length of the ridge line from;'s in the second to find the required length from s "to a piece of s = bt "to move vertically downwards so that the point (b t ') has the same distance from the surface of the purlin as the point B /' and drag (B / ^ a, "then the latter line is the true size of the ridge line. Are not available in the factory set as in Lehrgespärre woods for breaking these lines, they must be replaced by provisionally designated boards. Angles a and ß , the tilt angle of the ridge lines are bezw. hip rafters against the horizontal plane.


One now determines the particular for Gratspanen timber flush with these lines a "(b"), and a 'b ^ /') and moves on the surface thereof, the lines b 'Y, A "and Z (bt'), t as are thus given the lines, after which the timber is to be circumcised, which in (b ') y so much wood is left to even, as is required to produce the oblique pin with which the Gratbalken engages in the Gratstichbalken the joists. The angle a, which is indeed formed by the line (b ') y with the ascending Gratsparrenkanten is,


Geyger, descriptive geometry. 10






Foot bevel, the angle y, the t of the vertical lines a "z, (b") is formed with the edge of Gratsparrens, ie Lotschmiege.


If one imagines by means of guide line and the lines here, which indicate to the purlins the width of the saddle surfaces and form on the bar the boundaries of the attachment surfaces, namely the lines 1,1,1, ... and these lines are brought to intersect with the lines which define the projections of the hip rafters, the result is the top surfaces of the latter, dsd Fl. m, n, o, p, q (see Figure 416e) and dbfpq (Fig. 416f) (see Figures 417 and 418 in which the course of the determination of the attachment surfaces shown again). If the points p or q in the plan also in Lehrgespärre on the horizontal x "(b") and x / 's "transfer so that both x "y as x / 'i bezw. equal to the distance of the point a 'of pq in the floor plan, so is so that when the particular to hip rafter timbers go with their lower edges by the points y and i, the strength of the latter determined so that the lower edges thereof in the stream against the the shifter neither forward nor back seat.


Abgratung of Gratsparrens. The ridge line divides the upper surface of the Gratsparrens lengthwise into two equal parts, one of which derWalmfläche who belongs to other long side of the stream. These two areas are, however, inclined to each other, therefore must be removed from the rafters onto its surface from the center line of a part of the wood (it must be chamfered or trimmed) so that the new faces will get a slope corresponding to that of the stream surfaces. The amount of Abgratung, which is the same with the same slope and a straight hipped for both halves, is determined by the length os (Fig. 416e and 417).


If on the fed put hip rafters on the straight line which forms the base bevel, (b ") g bezw. (B t ') g = os made ​​so designates a parallel to the edges of the Gratsparrens guided by g chalk line, the line in which the new manufactured by chamfering, top surfaces of the Gratsparrens intersect the side surfaces of the latter. The cross-section of the latter is a pentagon (Fig. 416 F), the angle of the deburred edges of the rectangular Gratsparrenprofil is always an obtuse, a horizontally located plane produced by their intersections with the faces of the ridge line Gratsparrens at a right angle. The vertically measured heights in the side faces of the rafters and the hip rafters (ds the lengths L, L..) Match now.


The manufacture of the pin, by means of which engages the Gratbalken in Gratstichbalken, is as in the ordinary saddle roofs, for roofs with protruding chevrons, as assumed in the left part of the figure, the production of the surface is not required, with which the Gratbalken rests on the inferior purlin, the so-called. Or theft of the saddle. Has mau the points p and q of the support surface (Fig. 416e) to point i on the line x / 's "transfer (Fig. 416d), also the po route from i to is" removed = i (o) (comp. . well Fig 417) and pulled in (o) the perpendicular line (o) k, the triangle denotes i (o) k, the wood has to be removed to form the bearing surface. If this triangle is torn open on both sides of the Gratsparrens, so you only need the line i (o) by the distance os = (o) (s) to extend to pull through (s), the solder in both sides = (s) (k) and to connect the points (k) by a line on the lower surface of the rafter. The midpoint of the straight line connected with the points c, gives us in the connecting line on the lower surface of the Gratsparrens those lines, after which the further processing of the wood is to be effected.









The rafters to support at the upper ends F * 9 - 419 a and . 419b each other and leaning against the attack container. The genesis for the determination of the support surfaces, called attack swing and Anschneidens thereof is illustrated by Figures 419 a and b. In the side of the trimmed after Lotschmiege Gratsparrens is erected to the vertical edges kb (Fig. 419b) at an arbitrary point thereof to the vertical 1, the length of which can be seen by means of an angle iron to the work set, as shown in Figure 419 A, passes through the endpoint of the same parallels to the edges kk = ii and submit now by the edges aa and ii cuts. The length l is equal to half the Gratsparrenbreite, which only applies if the same roof pitches are available and the hipped is a straight.


Host the Schiftsparren. The determination of the shape and size of a Gratschifters done in the following way:


By splitting up its side edges is determined at the factory set the projection of such a Schifters, it being understood that if a joist is present, the shifter flush on one side with the beams of the same orders (Fig. 416f), the same that means not to bar represents. Are AB, CD, EF and GH, the lengths of the projected sides of such shifter, one transmits the same in Lehrgespärre on the horizontal b "x" and SX / 'off so as to b "B ° = A, B" D ° = CD, sF ° = EF, GH = sH ° and is built in B °, D °, F °, H 0 perpendicular to the rafter faces of Lehrgespärres the Lote B = B ', D'D ", F'F" and H'H "determine. These solders are to be transferred only on the side surfaces of the specifications for the Schiftsparren wood, which must be paid to the teaching rafters, namely the solders F'F "and B'D" directly on the surfaces <ler woods, with which they on the form on the Schiftern form these solders now Lotschmiegen and if we have the upper and lower endpoints connect to the same one every Schifter by straight lines, so, teaching rafters rest, the solders H'H 'and D'D "on the upper, free lateral surfaces this connecting line, that is situated on the upper and lower surfaces of the shifter, the















Back Bevels same. The lot and back bevels limit hereafter the surface with which a shifter leans on the hip rafters, even this surface is called "back bevel".


As in the example of Figure 416, the roof angles are equal to each other and also the hipped is a right angle, so all Schifter fall under the same angle against the hip rafter, and there are also the acute angle d on the upper surfaces of Schifter equal to each other ( Figure 416). A shifter is prepared according to the process just described, so no need for the other shifter only Lotschmiege, e.g. to determine the longer side, then transmits by placing a template made ​​of wood, cardboard or metal fabricated (Fig. 420a ), to which p . g 42Q upper ^ surface thereof the win. angle ß of the first done ge-| | ^ presented Schifter is taken and the free leg must specify the direction of the back bevel and is now moving on the other side of the wood by the intersection of the free leg of ß and the wooden edge of the Lotschmiege, which is also based on a template (Fig. 420 b) can be entered. Templates can be ultimately also be used in the cutting of the top surfaces and cones, intervene by means of which the shifter in the bar; considering the length of the Schifters, ie in addition to the highest and the lowest point knows, one needs only to the side surface of a template to place which the angle a ' transfers (Fig. 420c), which then the foot of the bevel Schifters is determined.


Also, using an angle iron in place of the template is the determination of the back of a Nestle Schifters executable when you bezw the length of the Schifters. the Lotschmiege knows thereof in the longer side. This Lotschmiege is transferred to the other side of Schifters; factory set put to an angle iron to the projection of the shorter edge of the rafter, in that an edge of one leg coincides with the same, an edge of the other leg, but through the end point of the projection of the longer edge of the Schifters leads (Fig. 416d and 420) and select the piece 2 = HJ. If this length is perpendicular to B ^ 'B / (Fig. 420) bezw. to F / F / 'applied by means of a point of the angle iron in any and Lotschmiegen D "D by the end points' and H" H pulled', it must be produced by a run through this section Lotschmiegen the back bevel of the wood. The upright 2 when the inclination of the roof surfaces of the same and the 'a hipped is rectangular, same as the width of the shifter.









2 The hipped is a straight, but the tilt angle thereof to the horizontal plane greater than that of the long side of the roof (Figure 421).


Figure 421, 421a and 421b.





The projections ^ 421e


tion of the ridges are not the bisectors of the right angles of the ground plan, in this case. The selected roof, soft Figures 421b and 421 c the basic and elevation, Fig 421 d an oblique section, FIG 421 e


421 f indicate the xy-section and FIG an oblique view also figure 421a the Lehrgespärre, is a simple gable roof, its rafters do not need because of the small span of the roof, a center support. Since the tilt angle of the Walmes is assumed greater than that of the long sides, the attack point moves outward, therefore the distance of its projection of the floor plan page, which belongs to the delusion that is smaller than the rest of the basic





the roof is cut by vertical planes along the lines AB, BC ^ and CD (Fig. 422) and it is assumed further that the planes AB and CD coincide at the same time with the sides of Schiftern, so would the average figure of the planes AB, BC CD and when you united by rotation around the vertical edges in B and C be projected into a single match the shown in Figure 422a. In practice, one does not usually inclined to cut the hip rafters; choosing a wood that is slightly stronger than a Schifter (Fig. 422 b), usually so that probably dieLangseitenschifter with their jaws






Figure 422b to 422d.











can nestle full lean, but not the Walme that therefore the Walmschifter ago, the Langseitenschifter but must stand back down.The sectional figures, which produce the three perpendicular to AB, BC, CD and the perpendicular standing under the same assumption in this case are shown in the figures, 422 b-d. Figure 422 c ergiebt if you cut only in the direction of AB, Fig.422d when the cut is made in the direction of CD. If one wanted to determine the amount after the Walmschiftern, so ensure that the latter find with their back bevels a full support surface, see Figures 423 and 423a, the construction would result in a Gratspanen whose strength would far surpass absolutely necessary.


The length of the Gratsparrens as determined in the previous example. Even from a diversity of the matrix ps and p's' is the diversity of burrs to detect by in transferring the points p and p 'result on the line x "s in Lehrgespärre two different points.






In the determination of the lengths of the shifter and its baking Nestle is a distinction to be made between Langseitenschiftern and Walmschiftern.The lengths of the former, both as their back bevels are to be determined according to the method described earlier in Lehrgespärre, the lengths and back bevels of the latter by the same procedure in the section through the hipped (Fig. 421 e). The back of the Nestle Walmschifter are those of the Langseitenschifter not congruent. The method of the determination of the back bevel


Hip rafter gets two bevels at its upper end, is the Mittelschifter E, the two bevels are the same size, and their determination is the same as that of the hip rafters schm iege n


3 Spaulders with a hipped. For the Fig 426 in plan and elevation, in Figure 426 in a slate hipped projection shown to be discharged due to the rules given the necessary timber. Is AB the one truss, which is located in the gable wall, one is to make a partial hip, the rafters of the same may not lead to the intersection at First, they are cut off rather in the same amount and with a horizontal gelegeneu beams, the cock- or collar beam to connect by means of pins. The length of this wood and the remaining mass of the same, which one requires for its Herriehtung, can the plan and elevation are directly taken. To determine remain the woods, which are to form the Gratbalken of Walmes. The projections of the ridge lines run at the factory set of a 'and b' to f, since the intersection of the surface produced by Abgratung with the horizontal plane 'a'b with the upper horizontal edge' a'b by the throat beam must coincide, so gives you • lem Gratbalken a width and at the same time a Aufsatzfläehe. if you a'c '-A'D'





Walmschifters one is shown in FIG 424. Also in the determination of the seizure of the hip rafters Nestle, the procedure of the previous deviates only slightly. The bevels between the hip rafters and attack containers are wider than those between the hip rafters (Fig. 421b and 425). For the former, the greater basic measurement is x, the smaller base dimension y zurückzustechen for the latter at right angles, then to tear the Schmiegungsflächen and the same to be cut eventually.


A Schifter, who, like the well B'e '= b'g' does, and goes to the projections of the ridges by c 'and d', e 'and parallels in the work set. The strength of the hip rafter can be arbitrarily selected, it is assumed here greater than that of the rafters.






Figure 426





and





Attack the nestle hip rafters have been determined according to the method explained above. For faster and better view of the shape of the Gratsparrens his oblique projection is of the same in Lehrgespärre nor the bottom view in Figure 426 b have been drawn.


4 Spaulders of an oblique Wal nies. The in Fig.427 (page 250) inclined AValm shown belongs to a collar beam roof with stellendem chair and knee wall. For


better understanding of the design are two of the roof next to the Lehrgespärre and the plan views, namely the elevation (Fig. 427a) and the side view (Fig. 427b), two cuts, from (Fig. 427c) and EF (Fig. 427 d), and finally even the collar beam (Fig. 427 e) Drawn been. Since the shifter be placed perpendicular to the eaves, so the Spaulders of such Walmes differs not really from that of the straight Walmes, provided that both same with the long sides of the roof









Figure 427 and 427a.





Figure 427b. inclination have. The


only difference is probably the one that in the present case, the lengths and the burrs of the two ridges do not match. The ridge lines of the floor plan are also the bisectors of the plan angle, so all Schifter, which abut against one and the same hip rafters, same lot and back bevels have, the use of templates for marking out this Nestle is also recommended in this case.


If in the distribution of Walmschifter a shifter on the center of the delusion or he comes, more correctly, to lie so that its center line throughthe attack point is so ventured into this point three woods together (Fig. 428), and it is also the Mittelschifter how the two hip rafters to cut after two bevels. If the center line, the so-called Mittelschifter, reach up to the attack point, we obtain


its bevels by aufschnürt a floor plan of attack point and in him with their center lines intersecting wood pieces on a board mounted in the factory set (Fig. 428) and the mass takes u and v by an angle iron that figure. These routes are now using the angle iron (to which they are marked) on the sides of the Schifters whose length is already determined, and











at its upper end by a plane parallel to the Lotschmiege is limited, is applied by one erected perpendicular to one of the two lengths of Lotschmiegen u and v in the side of Schifters, u by the end point of the vertical line also Lotsohmiege u'u ' draws, the distance v but on the other side of the wood transfers (Fig. 428 b) and the Lotschmiege v'v 'pulls, down the supply by ss and v'v' out and ss and u'u 'with the saw cuts the desired bevels. If the wood only to the two hip rafters are performed (Fig. 428 and 428 a and 428 c), is the process of scribing the bevels the same. If one determines the length of the timber and the same cut at its upper end by the Lotschmiege, one need only place the lengths U and V, the lengths X and Y by means of the angle of the timber (Fig. 428C) as described to be transferred, to obtain the same bevels.









Sometimes not even lead to the Mittelschifter also up to the hip rafters to give to the coincidence of three woods in the attack points ver








Figure 430


shun; puts you in this case between the Gratbalken slightly below the Anfallspuuktes a shorter bar, a so-called. Changes, parallel to the eaves and a can against this Schifter the butt (you change the shifter the top). The fastening of the change to the hip rafters, as the shifter, using a large nail (rafter nails). Mittelschifter and exchange are connected by tenon joint. The arrangement of the timber shown in FIG 429


5 Discharge of the saddle cut for the ridge board. Often rafters and hip rafters of a roof supported by a ridge board. Such a case has been accepted in Figure 430, from the same roof the timbers are drawn, collide in the attack points of the roof. The earlier detailed description given of the discharge process of the fifth section of a rafter bezw. Gratsparrens is also applicable to this case, since the ridge purlin via the attack point so as to protrude much as half of its width. Is the true length of the Gratsparrens been determined and















the timber is limited by a parallel with the Lotschmiege sectional area at its upper end so as to transmit by means of an angle iron on both sides of the timber by at any point of a lowering Lotschmiegen


built right, the lengths of 1.2, 1.3 and 1.4, and moves to each side of the timber Lotschmiegen 2,2, 3,3 and 4,4, the lower points are connected by straight lines on the lower surface of the timber. Taking into the middle of the boundary surface of the wood to the Lotschmiegen 1.1 parallels 1 ° 1 °, and backed by the bottom point 1 ° bezw. the lower horizontal edge of the horizontal section 1,1 of the timber up to the vertical plane which is determined by the Lotschmiegen 4,4 intersects also the timber in the planes defined by the solders 4.4 from bottom to top, up to the first section, and it is finally the attack Bevels 1 °, 2.2, 1 ° here, so are these cuts through the points (see the bottom view of FIG Gratsparrens 430) 1 °, 1 °, 2.2, 4.4 , 4'4 'determined. Is the midpoint of 3 ° of the line 3.3 is connected to the lower surface of the timber with points 4.4, then the connecting lines 3 ° 4, 3 ° 4, the lines of intersection of the vertical planes of the seat with the lower surfaces of the wood, according to which further has to be made of the processing timber.


b) Kehlsparrenschiftung. If a building floor plan-entrant angle, so to roof surfaces that rise from the legs of such an angle, in straight lines which hot throats and their projections, like those of the ridges, the layout angle bezw cut. halve the apex angle when the roof surfaces have the same inclination to the horizontal plane. The throat as the ridge of a timber is formed such that the fillet of the same line coincides with the center line of the upper surface. The wood is called valley rafters. . Rafters of the roof, which abut against this wood and based on the same glad Kehlschifter. The determination of the shape and length of these woods called Kehlsparrenschiftung.


An example with a throat is given by Figure 431, which shows the projection of two intersecting at right angles (a recurrence forming), the same deep gabled roofs, whose rafters are supported by a Mittelpfette. The Mittelpfetten shall be supported at the corners by pillars chair. The roof rafters is not to make the figure too complicated omitted. Have the roof surfaces also same slope, so the ridges of both roofs must be at the same height, that intersect in one point. The straight line connecting the point with the apex of the re-entrant angle of the floor plan, a throat, the one connecting it with the apex of the salient angle, a ridge of the roof. The projections of the groove and the ridge form in plan view, a straight line with the straight line connecting the vertex of the mentioned angle, that is the inner and the outer corner of the floor plan, collapses the timber, which are required to form the groove and the ridge, a diagonal rafter pair one rafter is a hip rafter, which must be chamfered back shaped to the outside, but the other rafters is a valley rafters, the center line of two in the surface of section
















Transmitting the lengths thereof in the Lehrgespärre. Abgratung and groove at the same time be determined


To determine the strength of the collar beam, we extended the "Factory Set the inner lines of the attachment surfaces down, down ... the rafters to the intersection with the projection of the throat in o and moves perpendicular to the valley line pq the line which the inner boundary line attachment surface for





the valley rafter forms, by the same 433 ° \


Construction determined to the inside edge of the top surface on the Mittelpfette (Fig. 431). So that the valley rafter is now transferred to the point o Lehrgespärre, you do alsox "(o") = X'O and pulling (o ") fa" s ", as intended, his profile can be constructed (Fig. 431). It is easily seen that the fillet lower rafter edges are not aligned with those of the valley rafter; former occur on the latter (cf. also Fig 431a and 432c) This.





Figure 434


protruding edges to maintain, when the inner surface of such a roof is to be boarded, and deliver rates (Figure 432 B). The paper surface is a limitation by the straight P'Q 'to give, and thus to make the fillet rafter profile of Figure 423 a, but is not recommended because of the valley rafters in transmitting the points p 'and q' in the Lehrgespärre too low height ergiebt he would be weaker than the hip rafters, which is not as loaded as the valley rafters, because by the Kehlschifter leaning against not only him, but also rely on him, he is charged.












Figure 434a.














Determination of the Kehlschifter. The manner of discharging a Kehlschifters that the Gratschifters is perfectly equal and 431b can be seen from FIG. It determines best reflects the Lotschmiege in the longer side thereof, and now transmits by means of the angle iron the length of a 'b' = 1 from the factory set, as shown in the figure, the Lotschmiege passes through the endpoint 1, projects them on the other side of the wood and finally cuts the triangular wooden prism whose base is the triangle cde, from.


The given in Figure 433 example is in Fig 431 shown with respect to the task that it represents, quite similar, again with a throat being the intersection of two roof surfaces, namely two pitched roof surfaces, which also belong to a right-angled return, generated, and the rafters as well as of valley rafters are supported by collar beams. To better understand the plan and side elevation nor the section AB (Fig. 433) is next to the Lehrgespärre, drawn, also is the corner of the roof, which by four vertical planes, the first traces by the straight lines CD, DE, EF and FG are added, is separated from the remaining part of the roof, in an oblique projection (FIG. 433b) are shown. The task is also unsubscribe valley rafters and Kehlschifter, the method used differs from that just described in no respect from, hence any further explanation of the given structures is superfluous. Finally, isometric views have been drawn from the upper and lower end of the Kehlsparrens.









For the hosting of the Kehlschifter and valley rafters one still has a second method, which is housed in the Fig 434 to display the name and


Klauenschiftung leads. Since the load carrying capacity is reduced the same by the groove of the Kehlsparrens to accomplish the groove itself only with difficulty and is time-consuming, the connection of the Schifters has incorporated the valley rafters, the same half the load at the junction, as shall be designated a pretty poor as long as it is done only by means of iron nails, so one often takes the so-called. Klauenschiftung the hitherto described before, which is that the valley rafter is not grooved and the same belongs to the two intersecting roof surfaces only with the center line as a fillet line and accordingly the shifter with their surfaces with which they must be located in the roof space, up to this line leads. After that, the shifter must be circumcised at its lower end so that they engage with their wood still on the valley rafter; refers to this form of Endigflng of Schifters as a claw (or as Geissfuss).


To a Kehlschifter the given by Figure 434 Example: intersection of two shed roofs, absorbed. Purlin, of which are Lehrgespärre, floor plan, elevation and section drawn from (Fig. 434a) to discharge with claw, one has, as yet, valley rafters and Kehlschifter unlace the factory set, but care must be taken here is that the top corners down, down ... to the intersection must meet with the projection of the center line of the fillet surface rafter at one point extended. The valley rafters of the present example is that of the former compared with respect to its location to the piece x back (Fig. 434). In determining the true length of the Kehlsparrens as the Sclüfters B we proceed as in the previous tasks, but to note here is that the projections of the edges of the Schifters B extend to the centerline of the Kehlsparrens. It also determines only the Lotschmiege again for the longer side of Schifters by making M "N" in the teaching package equal M'N 'factory set, built in the perpendicular N "and now destined for the shifter wood flush with the second projection the fillet rafter center line sets and the same cut after Lotschmiege EF. This shifter is shown again isometric and enlarged in Figure 434b. Now you about wearing by means of a winding iron the basic dimension a as 434b shows, on the other side of Schifters and cut the wood by the back bevel from efgh The produced claw is in its lower part a parallel jaw bevel;. those generated by its intersection with the side of the wood Lotschmiegen that are removed from the first to the length b (see floor plan), which, like a means for transmitting the length of angle iron (FIG. 434 c). Considering further that the second Lotschmiegen with their highest points i (Fig. 434c) may be greater only by a distance h than the points E and H, as . making them the points that claw determining determines the distance h, which is highlighted in side elevation as in the section can be determined that one cd also transmits the edge in the Lehrgespärre, so you do e d''in the ground crack ( Fig 434) = M "d" in Lehrgespärre and provides means Schnursehlages the Parallel by d "to edge of the rafter ago, also makes H" 0 "= M'0 'in plan 0" in Lehrgespärre straight up to the intersection J with the parallels through d ", then the difference in height of the points E and J is the required length h






2 The Spaulders on the work sets.


The Spaulders on the work theorem is mainly beier averaging the length of the shifter application, it is that we put aside the roof area to be determined Schifter in the plane of the floor plan (bezw. factory set). This assignment of the roof surface may be effected either by rotation about the eaves or by rotation about the first, during the rotation of the first line the roof surface is placed in a horizontal position, but projected onto the horizontal plan level or combined by reduction with it. In the prorated level intended for the jack rafter timbers are put into it, as they should be in the roof frame later. In Figure 416 f S. 240, for example, is beaten down abc the right half of Walmes been so apportioned to the factory set level. The folded-back roof, the triangle (a) b 'c'. The length c '(a) is equal to the length of a rafter "b". The line b'c 'factory set, fixed by means of guide line is the one of the ascend Schifter, but they do not reach the folded ridge line b' (a), but only up to the more extended parallels d'c °, which the is prorated Gratsparrenkante, which also lies in the hipped. If also this line produced in the factory set using guide line and it now presents intended for the Schiftsparren woods on the needle bar into which they are to intervene, perpendicular to Traut line b'c ', as referred to the latter line is transferred to the upper surface of the wood , the lower boundary line, the line d '(° C), likewise projected onto the upper surface of the timber, the upper boundary line of the timber, ie, the baking bevel on. At the upper end is now the wood after the Lotschmiegen which can be drawn through the end points of the back bevels in the pages to be circumcised after the foot nestle at the bottom. The specification of the bevels done in practice by the board made of pieces already mentioned templates; course is under the foot bevels yet to leave as much wood that even a pin can be cut. The same procedure has been indicated in the examples which are given by Figs 427 and 434. In the example of Figure 427, the hipped abc the eave line B'C 'into the working set level has been folded, through the points e' and f are moved to the folded ridge lines that determine the lengths of the shifter. (Bezw About the descent beating the levels., The construction of the true size of the top figures compare the d-hitting chapter B.) Of course, the shifter must so far survive even at the lower end, that they may be cut in accordance with Lotschmiegen. In the Heispiel Figure 434 a pent roof surface is rotated around the ridge line and projected on the design of the rotation on the floor plan level, it is length x'y '= u' v '. The true length and the shape of the surface of the Schifters c is given by the trapezoidal PQRS. At both ends of the wood is to be circumcised after the Lotschmiege, it at the bottom to attach the claw.






3 The Spaulders on rooftops or the Bohlenschiftung.


On the in Figure 435 given by reason, plan and side plan purlin roof with standing chair and knee wall a small gable is to be placed and linked by substitution of two teaching packages of Pfettendaches the Daehraum of the pediment with the former roof according to its lineup . By the intersection of the new saddle roof surfaces of the purlins





roof arise throats to their formation in such a case no valley rafters are used, which would have the consequence that all rafters that intersect the valley line, would have to be cut to Schiftern. But in order not to compromise the stability of the roof, you wont either but a few, as is assumed here, or replaced even no rafters, but about 5 cm thick planks nailed to the rafters of the old roof in the direction of the flutes and relies on these Bohlen the rafters of the new roof, which are attached after cutting the bevels on these means of strong nails. The essay or Nestle surfaces arise from the tendency of the Pfettendaches and aufzusetzenden gable. If a few rafters tailored, so can the work of the Schiftens for the other pairs of rafters in place, that are running on the roof itself, as a determination of the flute line length is usually not necessary. It put the Fig 435a Lehrgespärre the new roof before, theis located in a horizontal position at the factory set and should find such a list is that it coincides with the front foot nestle in the line indicated on the planks (AB). To determine the top surfaces of the inclination of the roof of the old roof is to tear open. Is the line on which the attack point of the new ridge is located, and which must be a line of slope of the roof surface, shown on the latter, to attach temporarily in the direction of the line, a pile of the strength as the other two, they have and transfer the fall line on the surface of this screed. Through this line, a plane is now perpendicular to take to the ridge line, which intersects the roof, the cut line is to unlace the factory set. For this purpose one refers to the line AB in Lehrgespärre (FIG. 435a) to a point x, and the same moves through a line that has the same inclination to the horizontal, as the roof surface of the Pfettendaches the horizontal plane. This line would be identical to the one we get when we look at the purlin from the side and a parallel at the distance y is equal to the screed thickness would indicate the roof surface (rafter surface). The point s, in which the ridge line of the installed roof penetrates the roof of the elderly, we find the fact that you pull through point t of the Lehrgespärres the parallel to AB and on the roof of x "from up in the fall line the length of xs ablates. Connects to this point with the points A and B, we obtain the Kehlllinien and you will limit these lines the planks when the roofs with battens are to be provided, but the arrangement indicated by the figure would recommend though the roofs of the two roofs are boarded.


The factory set is perpendicular to AB standing and passing through x is now unraveled Just xC, in parallel, at the distance equal to the rafter strength the straight zD, this yields a difference in height of the bevels in the front and rear surfaces of the rafter, which we for cutting the top surface require (Fig. 435 b). There are now templates are customized, according to which the remaining rafter feet that have congruent attachment surfaces for the same rafter thickness, are circumcised.


In the above the main rules for the Schiften for roofs are given, their roofs are flat. The study of them alone will not enable the reader to treat similar examples readily, if he has not worked through even a greater number of tasks on the characters Gazette. To give him this opportunity, this chapter are some illustrations have been added, which provide practical examples taken and from which smaller tasks of different kinds can be formed without difficulty.


Figure 436 shows the rectangular recurrence pitch roofs of two, one of which is a hipped. In addition to the elevation (Lehrgespärre) and floor plan can be found for easier orientation on the arrangement of the woods yet a view in the direction of the arrow A.


Figure 4 ']? brings the obtuse recurrence of two gabled roofs, a collar beam roof and a gable roof of ordinary lesser span of purlin.


































Except Lehrgespärre, floor plan and elevation showing the figure nor the joists with Dachau averaging and an oblique projection of the given roof.Discharge are the hip rafters, valley rafters and the Verfallungsgrat; due to the given rules, these tasks whose solution is indicated partly solved without great difficulty, with a description of the process would be already repeated what is said.


Figure 438 shows the rectangular recurrence between two gable roofs of different span. The roofs are collar beam roofs. In addition to the floor plan and elevation the roof joists with Dachau averaging, the collar beam and a section (ab) are given expression. For the first time we encounter here a timber, which is called "Doppelschifter" and it leans to one end of a hip rafter, with the other end to a valley rafter.


Figure 439 finally brings a hipped roof with a buttress,







THE MANUAL


BAÜTECHNIKERS


AN EASY TO GET TO SUMMARY OF TECHNICAL EDUCATION SUBJECTS Baugewerkschulen LANDSCAPED


COMPOSED


BY


EXPERIENCED BAUGEWERKSCHULLEHRERN


PUBLISHED


BY


HANS ISSEL


ARCHITECT AND KGL. BAUGEWERKsCHULLEHRER









Introduction


In our rich technical *. Literature we are still missing a comprehensive, while useful and inexpensive manual that could be conducive to the construction engineer in his studies at school and at the same time at his work in practice to the side. Such manual must fulfill three main requirements: it must be short, clearly written and to the point, it needs to be understood by the largest possible number of good illustrations, and finally, it must be handy in the use.


These conditions are examined, the signed publishing firm in the publication of this "handbook of Bautechnikers" to cater primarily by going on with a number of proven Baugewerkschulmännern in connection obtained for the processing of the individual technical subjects. The uncommon fairness and but great richness of the individual volumes could be achieved only by the fact that the authors both as the publisher in self-sacrificing way child's overall interests. Only in this way it was possible to create a manual that provided basic conditions correspond to "Mll'g and good" could.


e - The individual volumes sit in the presentation of the subject matter first to the needs of Baugewerkschule to, but at the same time they have been extended so that it can also be the addition, emerging from school to practice structural engineer of any real use. The individual titles of which are reproduced on the following page in-depth manner. '- already proves the favorable reception which has been found in the circles concerned our company that we offer a teaching and auxiliary point here is that his name deservedly . It is no less appreciative of the many manifestations of the trade press can be seen on the previously published volumes that we actually publish in the "Handbook of Bautechnikers" a work that meets the needs of the school and the demands of practice in the same way.


Leipzig, 1902


The publishing house.


Beruh. Friedr. Voigt






Edited by Hans Issel, architect and Royal. Baugewerkssehullehrer


Sette


Volume I. The carpenter comprising the compounds of the woods with each other, the half-timbered walls, joists, roofs including Schiftungen and scaffolding, edited by director Prof. A. Opderbeeke. Second enlarged edition. With 732 illustrations in the text and 25 plates 4-5


Volume II The mason, comprising the building walls, ceilings, floors, the cleaning and Fugearbeiten, edited by Prof. A. Opderbecke, architect. With 625 illustrations in the text and 17 plates 6-7


Volume III. The design of teaching, including the brick and stone construction of Medieval and Renaissance forms, edited by Prof. A. Opderbecke and architect Hans Issel. With 675 illustrations in the text and 10 plates, 8-11


Volume IV The inner expansion, including doors, windows, paneling, wood floors and stairs in wood, stone and iron, edited by architect Hans Issel.With 533 illustrations in the text and 7 boards. . . 12-13


Volume V. The residential customer, comprising detached and single-

family house built, the freestanding and built Apartment building, the

urban residential and commercial building and its interior arrangements, edited

by architect Hans Issel. With 330 illustrations in the text and 3 plates. . 14-15


Volume VI. The eye my Baukunde comprising the water supply,

the elimination of waste waters and waste, the toilet facilities and

urinals, the furnace and heating systems, edited by Professor

A. Opderbecke. With 597 illustrations in the text and 6 partly colored plates 16-17


BandJVII. The agricultural Baukunde comprising farmhouses

and farmsteads, manor houses and Gutsgehöfte with all ancillary

equipment, field and Hofscheunen, stables for large and small animals and

buildings for agricultural trade, edited by Hans Issel. With

611 illustrations in the text and 19 plates 18-19


Volume VIII, the timber comprising the timber, block, stand and

stave buildings and their contemporary re-use, edited by architect

Hans Issel. With 400 illustrations in the text and 12 plates .... 20-21


Volume IX. The iron constructions of building construction, including the

calculation and arrangement of design elements, links

and bursts of rolled iron, the carrier and its bearing, the ceilings, columns,

walls, balconies and bay windows, stairs, roofs and skylights, be-

works of senior teacher Engineer Richard Scholer in Barmen-Elberfeld.

With 820 text illustrations and 18 tables 22-23


Volume X. The roofers and Bauklempner comprising all

types of Dacheindeckuugen with fireproof materials and the construction

tion and arrangement of gutters and waste pipes, edited by

director Prof. A. Opderbecke. With 700 illustrations in the text and 16 plates 24-25


Volume XI. The applied descriptive geometry, comprising the

basic concepts of geometry, geometric drawing, the projection

doctrine or the projective drawing, the Dachausmitteluugen, helical,

helical surfaces and curved components and the Schiftungen, edited by

Prof. Erich Geyger in Kassel. With 439 illustrations in the text. . .26


Volume XII. The architectural style of teaching, comprising the main Entwickeluugs-

levels of the architecture, with particular emphasis on the history of

bourgeois apartment building down to the latest period, edited by Hans

Issel (Published 1902) 26


Each volume is individually bought.


Price of each volume stapled 5 Mk 6 Mk bound.